54 Welfare Avenue S, Beverly Hills
House
Well-Maintained Family Home Offering Space, Comfort and Convenience
WELCOME TO YOUR NEW HOME…
Set on a generous parcel of land and constructed in solid double brick, this well-maintained family home offers space, comfort, and outstanding potential. Neat and original throughout, the home presents an excellent opportunity for families, first-home buyers, or investors seeking a spacious residence in a convenient location.
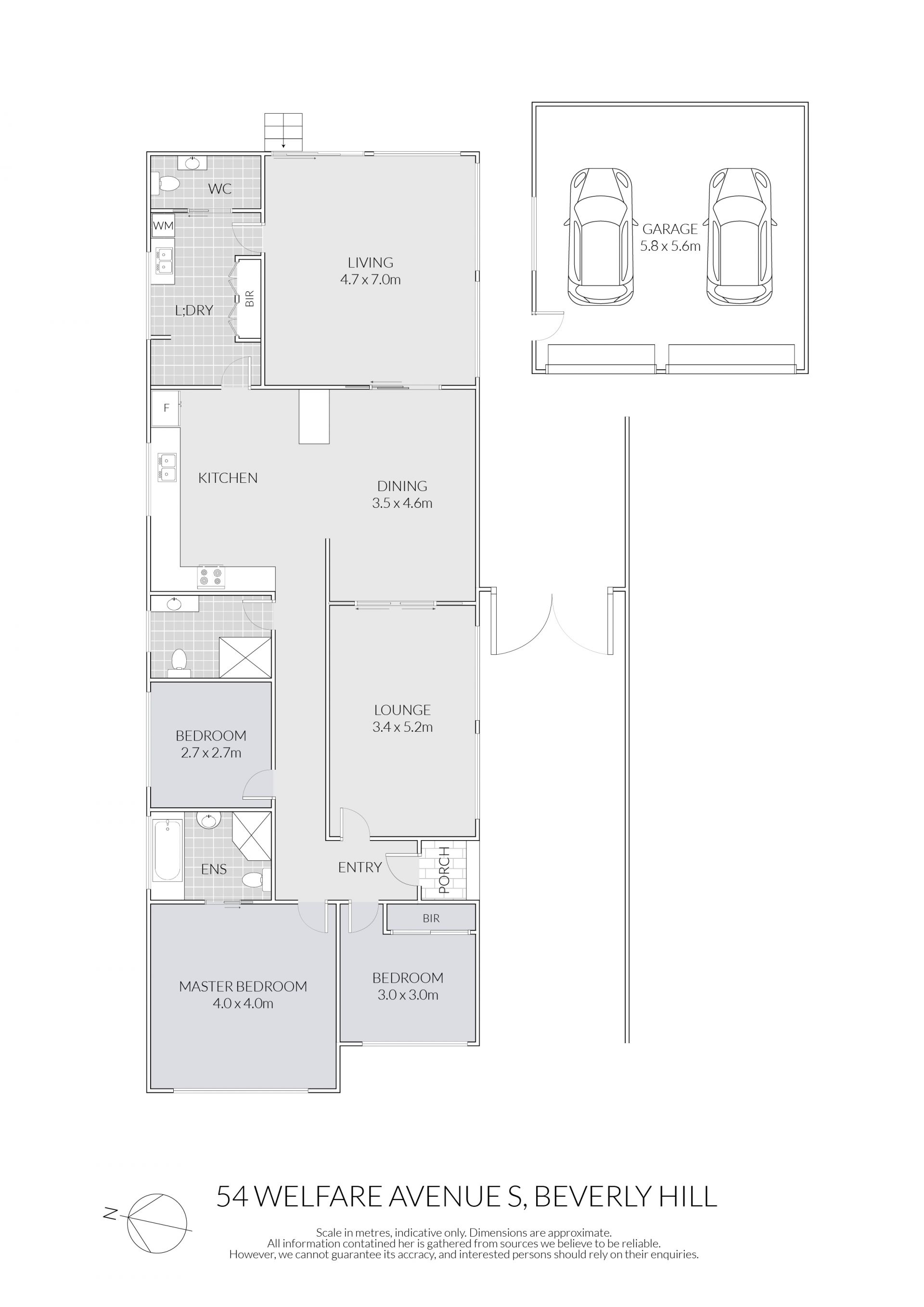
Inside, you are welcomed by an oversized lounge room that provides plenty of space for relaxed family living. The large kitchen and dining zone is equally impressive, offering generous bench space, ample storage, gas cooking, and a practical layout ideal for everyday use and family gatherings. Split system air conditioning to the dining area and main bedroom ensures year-round comfort.
Accommodation includes three well-proportioned bedrooms, with the master bedroom featuring its own ensuite. A main bathroom services the home, complemented by a separate powder room for added convenience. The internal laundry offers direct outdoor access, enhancing functionality.
Outside, the property continues to impress with a double lock-up garage, side driveway, and additional off-street parking, providing space for up to four vehicles. With openable windows, good natural light, and a neat presentation throughout, this solid home delivers comfort now with scope to personalise or enhance over time.
Ideally located close to local schools, shops, and public transport, this is a practical and well-positioned home that combines size, structure, and everyday convenience.
FEATURES OF THE PROPERTY:
- Solid double brick construction with a neat, well-kept original presentation
- Oversized lounge room plus expansive kitchen and dining area ideal for family living
- Three generous bedrooms. one with built-in wardrobes, master with ensuite
- Main bathroom plus additional powder room for everyday convenience
- Split system air conditioning to dining area and main bedroom
- Double lock-up garage, side driveway, and ample off-street parking
- QUALITY INCLUSIONS: Split air conditioning, gas cooking, oven, built-in wardrobes, central heating, internal laundry, driveway parking, close proximity to schools, shops, and transport
WHY BEVERLY HILLS?
- Close to prestigious educational institutions like Beverly Hills Girls' High School, Beverly Hills Primary School, Beverly Hills North Primary School, and Regina Coeli Primary School, ensuring a bright future for your family.
- Minutes away from numerous churches, parks, and recreational facilities.
short distance away from easy access to major motorways and main roads such as the M5 , King Georges Road and Canterbury Road.
- Short distance to the public transport network with Beverly Hills Train Station and easy access to bus routes.
- With over 40 cafes, restaurants, and takeaways, offering everything from Asian to Mediterranean and Modern Australian cuisines, you'll never be short of dining options.
BOOK YOUR INSPECTION NOW!
DISCLAIMER: While Aria Realty Co. have taken all care in preparing this information and used their best endeavours to ensure that the information contained therein is true and accurate, but accept no responsibility and disclaim all liability in respect of any errors, inaccuracies or misstatements contained herein. Aria Realty Co. urge prospective purchasers to make their own inquiries to verify the information contained herein.
Set on a generous parcel of land and constructed in solid double brick, this well-maintained family home offers space, comfort, and outstanding potential. Neat and original throughout, the home presents an excellent opportunity for families, first-home buyers, or investors seeking a spacious residence in a convenient location.
Inside, you are welcomed by an oversized lounge room that provides plenty of space for relaxed family living. The large kitchen and dining zone is equally impressive, offering generous bench space, ample storage, gas cooking, and a practical layout ideal for everyday use and family gatherings. Split system air conditioning to the dining area and main bedroom ensures year-round comfort.
Accommodation includes three well-proportioned bedrooms, with the master bedroom featuring its own ensuite. A main bathroom services the home, complemented by a separate powder room for added convenience. The internal laundry offers direct outdoor access, enhancing functionality.
Outside, the property continues to impress with a double lock-up garage, side driveway, and additional off-street parking, providing space for up to four vehicles. With openable windows, good natural light, and a neat presentation throughout, this solid home delivers comfort now with scope to personalise or enhance over time.
Ideally located close to local schools, shops, and public transport, this is a practical and well-positioned home that combines size, structure, and everyday convenience.
FEATURES OF THE PROPERTY:
- Solid double brick construction with a neat, well-kept original presentation
- Oversized lounge room plus expansive kitchen and dining area ideal for family living
- Three generous bedrooms. one with built-in wardrobes, master with ensuite
- Main bathroom plus additional powder room for everyday convenience
- Split system air conditioning to dining area and main bedroom
- Double lock-up garage, side driveway, and ample off-street parking
- QUALITY INCLUSIONS: Split air conditioning, gas cooking, oven, built-in wardrobes, central heating, internal laundry, driveway parking, close proximity to schools, shops, and transport
WHY BEVERLY HILLS?
- Close to prestigious educational institutions like Beverly Hills Girls' High School, Beverly Hills Primary School, Beverly Hills North Primary School, and Regina Coeli Primary School, ensuring a bright future for your family.
- Minutes away from numerous churches, parks, and recreational facilities.
short distance away from easy access to major motorways and main roads such as the M5 , King Georges Road and Canterbury Road.
- Short distance to the public transport network with Beverly Hills Train Station and easy access to bus routes.
- With over 40 cafes, restaurants, and takeaways, offering everything from Asian to Mediterranean and Modern Australian cuisines, you'll never be short of dining options.
BOOK YOUR INSPECTION NOW!
DISCLAIMER: While Aria Realty Co. have taken all care in preparing this information and used their best endeavours to ensure that the information contained therein is true and accurate, but accept no responsibility and disclaim all liability in respect of any errors, inaccuracies or misstatements contained herein. Aria Realty Co. urge prospective purchasers to make their own inquiries to verify the information contained herein.
Inspection
18
Feb
Wednesday, 5:45 pm - 6:15 pm
Add To Calendar
21
Feb
Saturday, 11:15 am - 11:45 am
Add To Calendar
Auction
28
Feb
Saturday, 1:30 pm
Add To Calendar
